Канцлер-2
от 4 280 000 ₽
от 61 940 ₽/м²
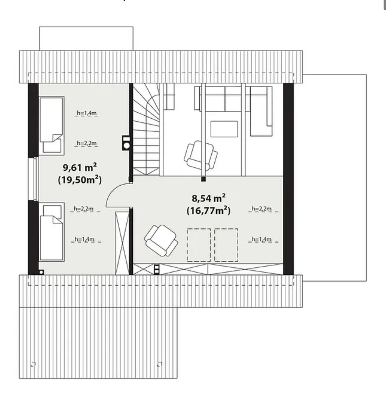
Площадь69.1 м²
Санузлы1
Спальни2
Этажи1.5
Описание
Дом для круглогодичного проживания.
Характеристики дома
- ФундаментCвайно-забивной, сваи бетонные, армированные, 150 × 150×3000мм. Нижняя обвязка: доска сухая строганная 45×140×6000мм
- Лаги полаДоска сухая, строганная 45×190×6000мм
- КаркасДоска сухая, строганная 45×145×6000мм., с перехлестным утеплением 50мм
- СтропилаДоска сухая строганная 45×190×6000мм
- УтеплениеСтены наружные, полы, потолок - 200мм. Утеплитель: Rockwool Скандик (С учётом устройства вентилируемого зазора). Утепление перегородок - 150мм
- КрышаМеталлочерепица 0,45мм / мягкая кровля
- Отделка наружная и внутренняяПо желанию клиента (имитация бруса 135мм; фиброцементный сайдинг и тд); потолок - вагонка 12мм
Мы можем адаптировать внутреннюю и наружную отделку согласно вашим предпочтениям, а все компоненты и материалы при строительстве дома подберём индивидуально под ваш вкус. Позвоните и мы с удовольствием вас проконсультируем.










